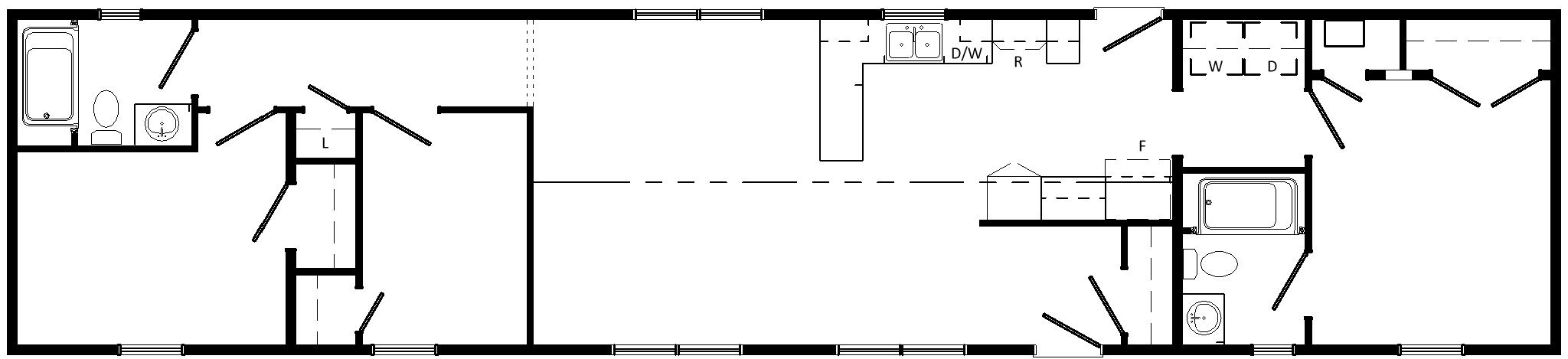
Fairview – Comfort

Fairview – Comfort

3

 BR

|

2

 BTH

|

1152

 sq/ft

|

72×16

|

Mini Home

Property Description

  • Separate Master bedroom
  • Spacious Kitchen with peninsula
  • Foyer Storage
  • Cathedral ceilings in main living area
  • Front peak entrance
  • Main Floor laundry
  • Open concept living area

Photo Gallery

Click to enlarge photos.